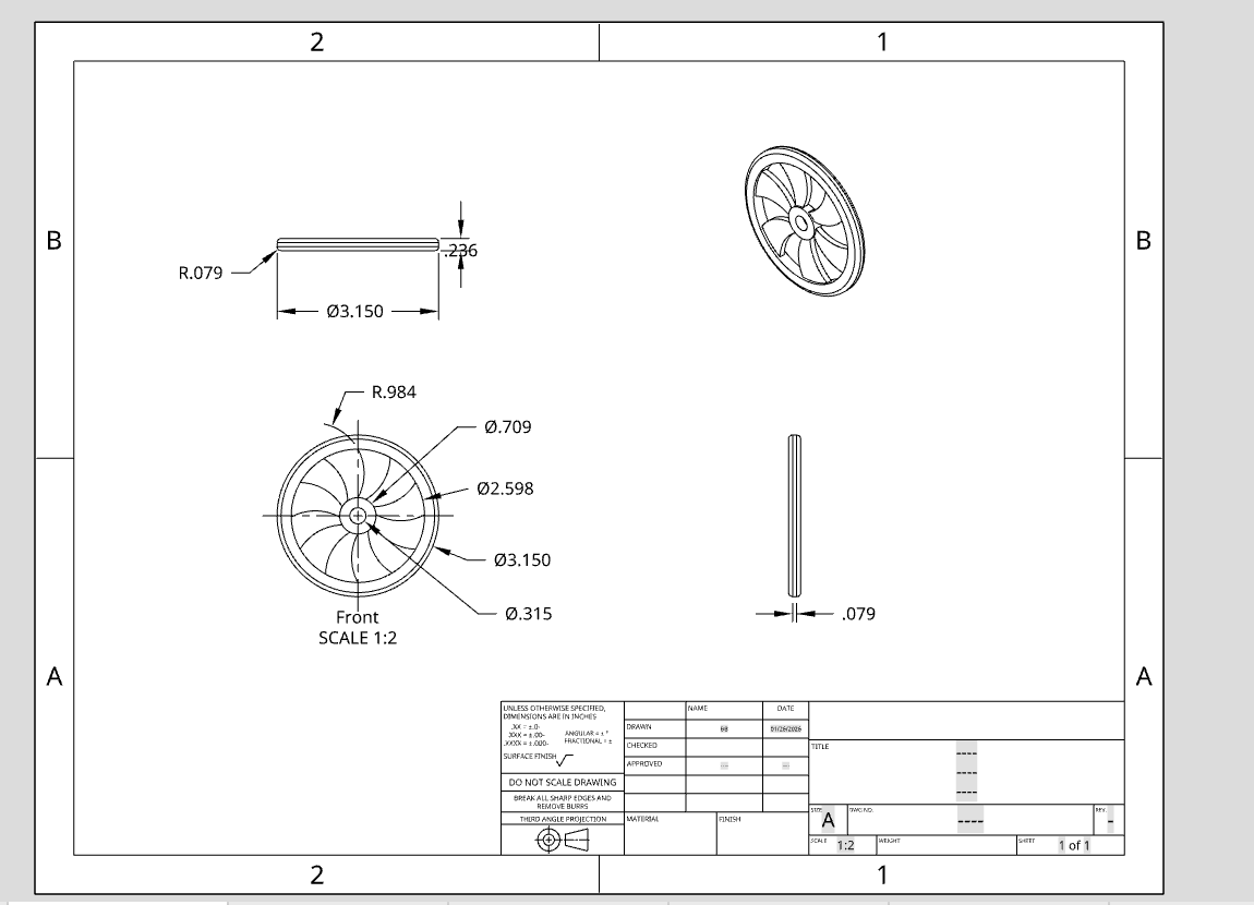
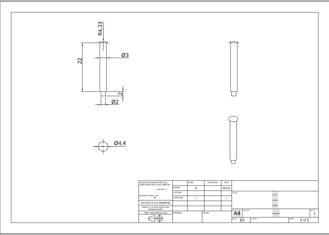
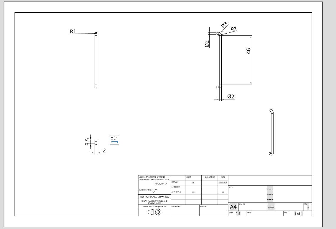
All Projects Sterling Engine January 2026 Onshape3D Print Putting it all togetherFly WheelConnecting RodPinDisplacer & Displacer RodMain Body